tank sizing시 Site limitation을 고려하여 아래의 요소들을 기준으로 preliminary sizing을 한다. 이후 경제적 요소 및 내진설계를 적용하여 adjusting한다.
- 부지의 크기
- Future construction의 고려
- 부지 내 배관 설치 공간 확보
- Maintenance 공간 확보
- 동일 부지 내 군집 탱크의 동일높이 고정
- 관계법규에 의한 탱크간 spacing
- 관계법규에 의한 방류둑 면적 확보
탱크의 높이는 상용강판 size를 고려하여 6ft 나 8ft 배수로 정한다.
steel storage tank 설계는 API 620, API 650, KS B 6225, JIS B 8501, BS 2654 등과 같은 Standard에 따라 설계되며, 저장 물질의 종류, 설계 온도 (Design temperature), 설계 압력 (Design pressure), 탱크 용량 (Tank capacity) 및 적용 재료 (Material) 등이 주요 변수로 작용된다. 실제 저장 탱크들은 대부분 대기압 조건에서 운전되지만 설계 압력 조건은 아래와 같이 standard에 따라 다소 차이가 있다. 스탠다드별 저장 탱크 설계 온도, 압력 제한 범위는 다음과 같다.
|
Std.
|
max design temp (℃)
|
max design pressure, int/ext
(mmH2O)
|
pres/vac relief valve set pressure
(mmH2O)
|
|
API 620
|
121
|
10546 / -43.94
|
-
|
|
API 650
|
260
|
1835 / -25
|
-
|
|
KS B 6225
|
260
|
대기압
|
31 / -31
|
|
JIS B 8501
|
260
|
대기압
|
31 / -31
|
|
BS 2654
|
30년 기준
대기온도
|
571 / -61
|
-
|
Tank 용량
(1) Nominal capacity (공칭 용량)
Round number로 표현되는 용량으로써 통상 탱크 꼭대기까지 채워진 용량의 근사치와 비슷하며, 이는 탱크의 고유명사의 일부처럼 사용되는 용량이다.
(2) Gross capacity (겉보기 용량)
기하학적 용량을 말하며 직경과 높이로부터 직원통의 체적으로써 계산하여 얻어지는 용량 즉, V=(π/4)D2H로 구해지는 용량이다.
(3) Storage capacity (저장용량)
실용량을 말하고 탱크 바닥에서 최고 액면까지의 용량으로 계산된다. 최고 액면은 소방법등에서 정하고 있는 공간용적 확보와 최고액면 제한 조건 등에 의해서도 규제 받는다.
(4) Operating (or working) capacity (운전용량)
저장 액체를 평상의 상태에서 넣고 뺄 수 있는 용량을 말하는 것으로써 이는 탱크 바닥부의 dead stock (unavailable inventory)부분 액면 높이와 상부 최고 액면 사이의 용량으로써 결정된다. Dead stock level은 shell outlet nozzle의 내경 상단부 까지로 제한받고 최고 액면 level은 지진시 액면 요동에 의한 sloshing 높이, 법규제한 높이 등으로 규제되기도 하며 FRT에서는 낮은쪽 한계는 roof support가 resting된 상태의 액면 높이로, 높은 쪽 한계는 floating roof의 secondary seal 혹은 weather shield 선단이 top angle에 도달했을 때의 액면의 높이로 제한 받기도 한다.

CRT의 운전 용량
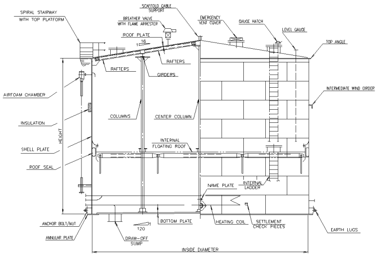
Roof 형식
Fixed roof type에는 Self support roof로서 이는 Roof plate 자체만으로 지지 되는 cone roof, dome roof, umbrella roof 등이 있다. 반면 Supported roof는 Column 없이 rafter로써만 지지되는 cone roof, dome roof 로써 흔히 internal rafter의 형식을 사용하나 polymer현상을 유발하는 내용물을 저장하는 경우 external로 설계할 수 있다. Trussed roof는 column없이 truss 구조물에 의해 지지되는 cone roof 혹은 dome roof이며 Rafter with column은 column에 의해 지지되는 polygonal girder 상에 rafter를 배열하여 roof를 지지 하는 cone roof가 있다.
Roof plate의 최소 두께는 5 mm (3/16 inch)이며, Roof slope의 경우 Support cone roof는 1/16 이상이고 self supported cone roof는 최소 1/6, 최대 3/4이다.
Flangible joint 판단 요건은 roof to shell weld size, roof slope 및 roof to shell 이음부의 실제 단면적을 기준으로 판별하며 flangible joint가 아닐 경우는 API 2000에 따라서 emergency venting device를 설치해야 한다.
Open top type인 External floating roof는 Single deck pontoon floating roof, Double deck pontoon floating roof, Single deck w/center pontoon floating roof, Open bulk head floating roof, Pan type floating roof가 있다.

Floating Roof Tank
Internal floating roof type은 Fixed roof tank 내에 internal floating roof를 갖는 tank를 말한다.

Internal Floating Roof Tank
Pontoon은 비중이 0.7인 유체에 대하여 24시간 동안의 강우 높이 10 inch에 상당하는 강우량에 대해서 충분한 부력이 있도록 설계하고, Single deck인 경우 2개의 pontoon이, double deck인 경우는 2개의 compartment가 puncture 된 경우에도 충분한 부력을 갖도록 설계한다.
Pontoon의 면적은 floating roof 면적의 30%로 한다.
FLOATING ROOF TANK의 SEALING SYSTEM
Floating roof tank가 traveling하기 위해서는 sealing system을 갖추어야 하며 이들의 주된 기능은 다음과 같다.
(1) Evaporation loss를 억제하여 탱크 내부의 service product loss를 줄이고 vapor 상으로 대기로 방출되는 gas를 억제하여 대기 오염을 줄인다.
(2) Fire hazard 요인 제거
(3) Seal system은 자체의 탄성력으로 shell과 roof 사이에 존재하며 roof의 횡력에 의한 거동을 제한하며 이로 인해 roof는 shell 내부에서 일정한 annular space를 유지하며 머물러 있도록 한다.
Seal의 종류로는 Primary seal과 Secondary seal이 있다.

primary seal

secondard seal
저장 액체에 의한 하중은 액체의 체적에 그 비중을 곱해서 구하며, 비중은 통상 석유류에서는 1.0 보다 작지만 특별한 명시가 없는 경우는 1.0으로 계산을 한다. 그러나 실제비중이 1.0보다 큰 경우는 그 비중을 따른다.
부식여유
탱크의 부식사례를 보면 바닥판의 내외면 부식이 가장 큰 문제로 대두된다. 내면은 액중에 혼재된 염류, 수분, 유화물 등이 바닥판상에 고여있게 되는 것과 외면은 우수가 저판과 기초사이로 침투하는 것이 주원인이다.
탱크 바닥판의 부식 방지책으로는 기초 성형시 oil sand로 마감 한다든지 cathodic protection등으로 처리하는 경우가 있다.
본체 외면 부식은 설치 장소, 도장에 의한 부식 조건의 차이, 강우, 일광, 결로, 약품증기 mist, 해염입자, 모래흡착 등이 원인이고 한편으로는 urethan foam 단열시공 탱크에서 foam중에 잔류하는 freon gas가 빗물과 섞여 염산을 발생하는 경우, calcium silicate 보온재 속의 염기가 빗물과 섞여 염기성의 용액을 형성하여 부식을 가속 시키는 경우, floating roof deck 상의 우수잔류에 의한 부식 경우 등 다양한 부식조건에 대해서 탱크의 예상 내구연한을 감안하여 정하게 된다. 부식여유가 너무 크게 될 경우는 수지 coating, 방식 lining 등으로 부식여유를 줄이는 방법도 있다.
Design metal temperature
API 650으로 설계되는 탱크는 최대 200°F (93.3℃) 까지 설계 가능하고 이 온도를 초과하게 될 경우 Appendix "M"을 적용하되 max. 온도는 500°F (260℃)로 되어있다. 따라서 API 650으로 design 할 수 있는 탱크의 최고 허용온도는 260℃이다.
D.M.T. 적용 시 주의해야 할 점은 기후 조건에 따른 동절기의 한랭한 온도, 가열운전을 하는 탱크 등에 있어서의 열응력 및 가열 cycle 등을 고려해야 한다. 또한 고온영역에서 재료의 강도 저하로 인한 문제와 저온영역에서 재료의 저온 취성에 의한 문제들을 설계측면에서 검토해야 한다.
TANK BOTTOM DESIGN
탱크가 석유 관련 제품이나 원유를 저장하는 경우, 또한 그 내용물들이 물을 함유하고 있다면, 물을 제거할 수 있는 장치를 반드시 고려해야만 한다. 그 물을 어떻게 제거하느냐에 따라서 탱크의 bottom type이 결정된다.
소형 탱크에서는 물의 배출 문제가 크게 대두되지 않는다면 flat bottom으로 한다. Flat bottom은 건조비가 싸고 concrete ring이나 flat pad type으로 기초 한다. 반면 대형 탱크는 보통 cone up이나 cone down bottom type으로 한다. Cone up bottom이 일반적이며 건조비가 상대적으로 싸다.
Cone up bottom의 단점은 물이 water draw outlet을 통해 배출되기 보다는 bottom의 가장자리에 고여 있을 수 있다는 것이다. 이 고여 있는 물은 탱크의 bottom과 가장자리의 2~3 inch의 lower shell에 심한 부식을 야기 시킨다.
Cone down bottom은 bottom slope가 탱크의 center를 향해 아래 방향으로 이루어져 물의 제거와 배출에 대한 좋은 이점을 가지고 있다. 향후 물의 배출은 예상한다면 이 type이 우선적으로 선택되지만, soil condition이 이 type의 bottom을 사용하는 장애 요인이 될 수 있다.

Bottom 선택의 중요 인자론 저장되는 제품의 operating requirements, Maintenance 관점 및 지반 특성이며, 전형적인 operating requirements로는 Service 상 bottom에 물의 층을 유지 시켜야 하는 경우, 탱크 내부를 “dry” 상태로 유지 하기위해 자주 물을 배출 시켜야 하는 경우, Service 상태를 치환해야 하는 경우 등이다.
한편 Maintenance 관점으로는 Piping 이나 connection의 accessibility, Bottom 밑면이나 저장측 bottom의 부식 관계, 정기적 청소 작업 등이다.
BOTTOM PLATE 최소 두께관련 API 650, KS B6225, JIS B8501, BS2654에서는 bottom plate의 최소 두께를 6 mm로 규정하고 있다.
FOAM CHAMBER
소방 관계 법규에서 정하는 바에 따라 설치하되 필요 방출량은 법규에 따르고 실제 방출능력은 각 maker에서 size별, 형식별의 방출능력을 근거로 size와 수량을 정한다.

발포성 원액과 물은 tank yard 바깥쪽에 위치해 있는 각각의 reservoir에 담겨있고 propotioner를 거쳐 일정비율의 수용액을 만들면서 수류 jet 작용에 의해 혼합되어 고정 배관을 통해 탱크에 부착된 foam maker에 이르러 공기를 흡입하여 공기를 핵으로 하는 다량의 포말을 형성한 후 자체 수압을 이용해 foam chamber의 seal glass를 파손시키면서 탱크내로 유입된다. 탱크내에 유입된 포말은 화재발생 유면을 덮어 공기를 차단시켜 연소의 조건을 차폐시켜 소화를 행한다.
MIXING EQUIPMENT
일반적으로 gas oil, heavy oil, crude oil 등의 저장 탱크는 저장 기간동안 Sludge가 생겨 침적되고 이로 인하여 탱크의 저장부분 용량감소, sludge 제거의 필요성, sludge 제거를 위한 탱크의 휴식기간 등에 의한 문제점이 생긴다.
이를 방지 하기위해 탱크 설계시 고려할 사항은 교반 장치 설치, jet 혼합기 설치 등을 고려할 수 있다. 이들은 모두 저장유체의 저장상태를 활유로 만들어 sludge를 부유 시킴으로써 침적을 최소화하는 작용은 같지만 일반적인 특성으로 본다면 jet 혼합기는 2종 이상의 액을 blending, 교반기는 sludge의 침적 방지를 주목적으로 이해를 한다.

탱크 내부 부속품 즉, roof support, heating coil, internal pipe 등과의 간섭이 없어야 하며 mixer blade에서 500 mm 이상은 떨어져 있어야 한다.
Mixer는 motor, reduce gear, mechanical seal, shaft & blade 등이 접속되므로 대부분 중량물인 관계로 하중을 설치하는 nozzle이 모두 부담하게 되므로 low type nozzle을 사용하여 보강판을 bottom plate 까지 연장시키고 neck 부위와 pad 사이를 gusset로써 보강한다.

그 밖에 설계시 고려사항으로는 Mixer shaft의 off-set angle, Tank bottom과의 clearance, Fluid level과 blade tip과의 clearance, Mixer로 인한 erosion 고려 등이다.
#Nominal#공칭용량#rafter#slope#Flangible#floating#Pontoon#deck#sealing#cathodic_protection#수지coating#방식lining#API650#cone_up#cone_down#발포성
'기계장치설계' 카테고리의 다른 글
| ORC (폐열 회수 발전, Organic Rankine Cycle) 이해 (0) | 2025.03.04 |
|---|---|
| MVR (Mechanical Vapor Recompression) 이해 (0) | 2025.03.04 |
| 상압탱크 sizing 이해 (0) | 2025.03.01 |
| Liquid ring vacuum pump 이해 (0) | 2025.02.13 |
| Plate and frame exchanger Design (1) | 2025.02.06 |