
흔히 알고 있는 EVC기능에 추가적으로 vacuum 방지를 위한 기능이 더해진 Combination Pressure / Vacuum Manhole Cover Vent는 탱크 보호를 위해 요구되는 압력이나 진공의 set point에 도달될 때까지 효율적인 vapor tight seal기능을 한다. emergency가 해제되어 탱크 내 압력이 다시 정상 범위에 도달되면 reseal된다.
vacuum vent는 약 13.8mmWC의 음압에서 relief하도록 spring loaded되어 있으며 이 과정에서 외부로부터 공기가 유입시 이물질을 걸를 수 있도록 wire mesh screen이 설치되어 있다.

PROTECTOSEAL; SERIES 52500 Emergency Pressure / Vacuum Manhole Cover Vent
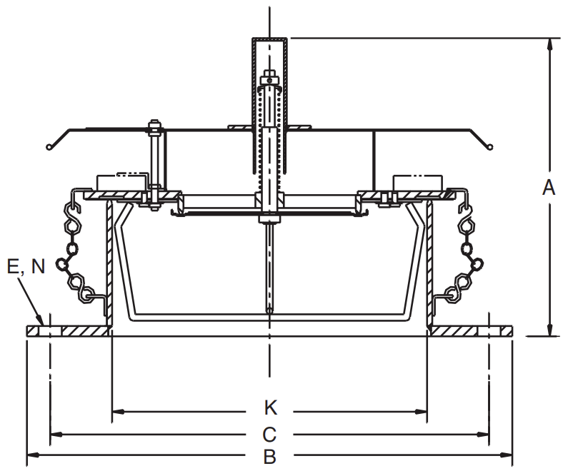
필요시 tank 내부 검사나 수리를 위해 access를 위해 retaining chain을 풀어서 cover를 완전히 제거할 수 있다.

EVC (Emergency Vent Cover) 종류중에는 pressure relief 기능외에 alternative model이 있으며 이는 추가적인 spring loaded vacuum valve가 함께 설치되어 tank 내부 음압으로부터 tank를 보호하기 위해 설치된다.
weight type과 spring type의 emergency pressure-vacuum vent가 있다.
tank로부터 배출되는 liquid movement 최대양이나 외기 조건에 의해 breather valve의 vacuum load를 초과하는 것으로 예상이 될 경우 tank의 붕괴를 막기위해 EVC에 vacuum기능을 추가해야 한다.

STRATA CONTROLS catalogue, Emergency Vent and Manhole Cover Fiberglass (Pressure and Vacuum)
일반적으로 EVC는 양압에 대해 즉, breather valve로 cover하지 못하는 외부 화재시의 relief load를 배출하기 위해 manhole상부에 cover를 설치하는데, 이 기능외에 vacuum일 때에도 breather valve로는 한계가 있어서 tank 보호를 충분히 위해 외부 공기가 들어올 수 있도록 고려된다.

Emergency Pressure and Vacuum Relief Vent
Spring-loaded vacuum pallet assembly가 EVC 내부에 설치되어 음압으로부터 탱크를 보호하기 위해 외부 공기가 tank내부로 들어가도록 아래방향으로 lifting을 한다.
operating range는 13.8/-13.8mmWC에서 700/-700mmWC이며 size는 400~600mm로 ANSI나 API650기준으로 flane체결되어 있다.

Tank P&ID
#EVC#vacuum#vapor_tight#spring_loaded#mech#screen#weight_type#breather_valve
'기계장치설계' 카테고리의 다른 글
| Self-Priming (자흡식) Pump 이해 (0) | 2025.10.13 |
|---|---|
| Air operated diaphragm pump 이해 (0) | 2025.08.30 |
| MAWP (Maximum Allowable Working Pressure) 이해 (0) | 2025.06.15 |
| sealless pump (Non-seal pump) 소개 (0) | 2025.06.15 |
| LNG vaporizer 이해 (0) | 2025.04.27 |